「トーヨーキッチンスタイルフォトコンテスト2019」で見事、Best of iNOを受賞された作品のご紹介です。

Best of iNO
株式会社エバーフィールド 様
タイトル:小川の家
建物の中心にキッチンを配置する平面プラン。
そのキッチンを中心に、リビングや解放感のあるオープンデッキと繋がりを持たせることで自然と家族が集まるすてきな空間、ライフスタイルが実現できているそうです。

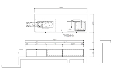
キッチンは、アイランドキッチンと背面にカウンター収納・収納ユニットを並列に配置したレイアウトです。
キッチンの扉は薫製された木とメタリックのハイブリッドな意匠が特徴のメタルスモーク、ワークトップには流氷をイメージするステンレスのアイスTOPに、シンクを立体的にフル活用できる3Dシンクを組み合わせています。
フードはトラスフレームが特徴のプリズムフード。フード上が素通しとなっていて圧迫感が少なく、解放感も感じられます。

インテリアでは、アイランドキッチンに合わせたのはmoooi(モーイ)のカーボンバースツール。
見た目も軽やかで、また視界を遮ることなくリビングまでを見通すことができ、ダイニングとリビングとの繋がりを開放的にしています。
リビングのシェトランドソファの脚はキッチンと同じエアフロー構造でデザイン的なコーディネートがされています。
また、吹き抜けの天井に吊るされたmoooiの照明レイモンドとシンク上のクランカーが、夜の空間をきらびやかに演出しています。

今回はBest of iNOのご紹介でした。
キッチンを建物の中心に置いた解放感のあるライフスタイル、いかがでしたでしょうか。
次回は、Best of CORE のご紹介です。
■ご採用いただいたインテリアのご紹介■

照明:クランカーLED 120
サイズ:W125/H29cm
オンラインショップをみる→

カーボンバースツールロー(moooi)
サイズ:W45/D45/H83/SH66cm
オンラインショップをみる→

照明:レイモンド2 R43
サイズ:φ43/H46cm
オンラインショップをみる→

集(つどい)ソファ3SA
サイズ:W205/D94/H75/SH43cm
オンラインショップをみる→
株式会社エバーフィールド
熊本県熊本市南区城南町舞原195-22
TEL:0964-28-1100
https://ever-field.com/
BEST of CORE受賞作品のご紹介は こちら
BEST of BAY受賞作品のご紹介は こちら
BEST of i kitchenキューブ受賞作品のご紹介は こちら
SHOWROOM
間取りやご予算、くわしくご相談されたいお客様には、ご来館予約をおすすめしています。インテリアだけふらっとご覧になりたいなど、ご予約なしでもお気軽にお立ち寄りください。
インテリアのトレンド、海外ブランドの最新コレクションやショールームのイベント情報が
届くメールニュース、特別イベントへの応募など特典が満載。